Magnum elevators-Hospital Lift

Hospital Lift

Hospital elevators (also known as stretcher lifts) are used for simple transportation for patients in a wheelchair, stretcher & in some cases a hospital bed.Vertical side panels, full height, are fabricated from Stainless steel providing full interior surface with ideal strength and rigidity.

Vertical transportation system for hospitals have special features such as smooth and jerk less traveling, economically low power consumption, smooth and comfortable travel, accurate stoppage, emergency control features and above all, reliability with safety.

These elevators must be built to run quickly, yet gently to virtually eliminate any noise, jerks, or shocks that could disturb a patients medical equipment room to accommodate the maximum amount of space needed for doctors, nurses, and any other medical personnel







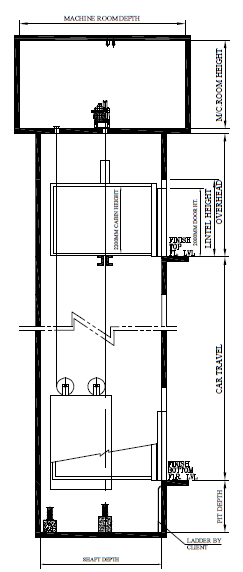
Layout Plan


Standard Dimensions

sidebar

Magnum Elevators & Co